Eine Auswahl unserer aktuellen Projekte:
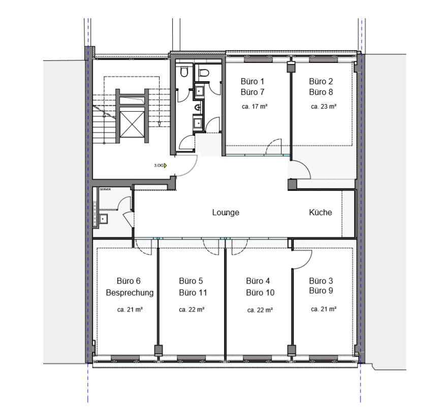
Bürogebäude, Robert-Perthel-Straße in Köln
Wohn- und Geschäftshaus, Köln Nippes
Verwaltung und Ausbau Hofgebäude
Wohn- und Geschäftshaus mit 8 Einheiten, ca. 550 m² Kellerfläche und Hofgebäude
Hofanlage, Guxhagen bei Kassel
Sanierung Denkmal sowie Ergänzung Wohngebäude und Hallenbau,
Wohngebäude mit 9 Einheiten auf ca. 460 m² Neubau- und 220 m² Altbaufläche sowie Gewerbehalle mit Büro und ca. 200 m² Lager
Projektentwicklung für die Metropol Immobiliengruppe
Wohn- und Geschäftshaus mit 200 m² Gewerbefläche und 24 Wohneinheiten











































